

















Build your family home Lot 139 Longview-Titled Now
From $1,025,000
Lot 139, Longview, Lake Hawea, Lake Hawea
Section size 401㎡
House size 142㎡
- Beds3
- Bathrooms2
- Receptions1
- Parking1
or email CarinaMaclennan@signature.co.nz
Visit Signature Homes Queenstown Lakes & Central Otago
Enquire about this Package
Build your family home Lot 139 Longview-Titled Now
Lot 139, Longview, Lake Hawea, Lake Hawea
Longview is a stunning master-planned community located in the picturesque Lake Hawea.
Lot 139 situated in Longview will be a thriving community that will be home to 480 well-designed residential homes, a 3.5Ha township service centre, two recreational reserves and 360-degree mountain views.
Lake Hawea is an adventure playground, where Longview is only minutes from the lake and an abundance of nature walks. There will be no reason to leave once you move into your new home at Longview.
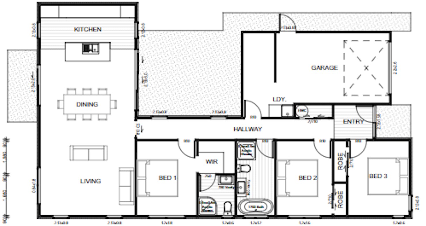
There's so much on offer with our cleverly designed three-bedroom plan. Designed to maximise space, the plan features three well-proportioned bedrooms, with the added benefit of an ensuite in the master bedroom, a beautiful open-plan kitchen living and dining space. What more could you want?
Build this home with the added peace of mind of Signature Homes fixed price guarantee.
Package includes
- Signature Homes market-leading Building Guarantees
- Includes Fencing
- Hydroseed
- Driveway & Paths
- Fixed Price Guarantee
Floorplans: Build your family home Lot 139 Longview-Titled Now




Location
Lot 139, Longview, Lake Hawea, Lake Hawea



