





























Designer 5 bedroom home - The Lakes Drive
From $1,470,000
The Lakes Drive, Kerikeri
Section size 3005㎡
House size 232㎡
- Beds5
- Bathrooms2
- Receptions2
- Parking2
or email stevecunis@signature.co.nz
Visit Signature Homes Northland
Enquire about this Package
Designer 5 bedroom home - The Lakes Drive
The Lakes Drive, Kerikeri
Start your new lifestyle in Kerikeri with this Signature Homes House & Land package
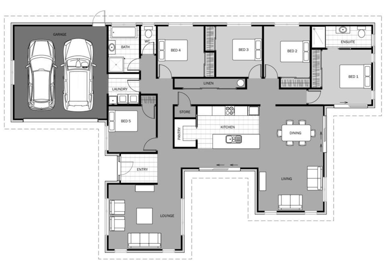
This large, flat 3005m² section has plenty of room for the kids, boat, campervan and/or family pets. With five double bedrooms, multiple living areas & an open-plan kitchen, this is the perfect family home!
Title issued
Secure your spot in the private & sought-after The Lakes Drive subdivision. Only a 5-minute drive to Kerikeri CBD, great schools, childcare, supermarkets, health care and other amenities. Start your new lifestyle with the beaches, great weather and friendly community.
Features include:
- 3005m² section
- 232m2 house size
- 5 double bedrooms
- Master bedroom with ensuite
- Open plan kitchen, dining & living area
- Separate lounge
- Separate laundry
- Double car garage
Needing help with Finance? Request a copy of our finance guide which is full of tips around securing finance. Request your guide here.
Package includes
- Signature Homes market-leading Building Guarantees
- Your choice of internal and external colours
- Fixed Price Guarantee
Floorplans: Designer 5 bedroom home - The Lakes Drive




Location
The Lakes Drive, Kerikeri


