



























Four bedroom family home - Park Green, Karaka
From $1,875,074
Lot 77, Stage 2A, Park Green
Section size 364㎡
House size 201㎡
- Beds4
- Bathrooms2
- Receptions2
- Parking2
or email BenWheeler@signature.co.nz
Visit Signature Homes Papakura & Franklin
Enquire about this Package
Four bedroom family home - Park Green, Karaka
Lot 77, Stage 2A, Park Green
Here is your chance to secure this modern double-storey, four-bedroom family home, on a low-maintenance section.
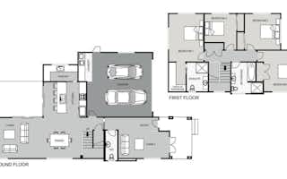
On a flat, north-facing section located in a quiet, elegant neighbourhood - this is your new dream home! This two-storey home with four double bedrooms, an open plan kitchen, living and dining and a separate family room is perfect for families!
Located in the stunning and sought-after Park Green subdivision, that has access to a coastal estuary and large areas of greenways. It is envisaged that there will be something for everyone, from pedestrian and cycle networks to parks, schools and other amenities.
Park Green truly offers a dynamic lifestyle that will provide a sense of space and of high-quality living. Situated approximately 30 minutes south of Auckland CBD, between Karaka and Drury, Park Green has easy access off the SH1 Drury interchange and via Great South Road.
House & Land package features includes:
- 201m2 of internal living
- 364m2 of north-facing flat land
- Double car garage
- Four generous bedrooms including a master suite
- Tiled Showers
- Heat Pump
- Top soil, grass seed & some planting
- Covered Patio with Timber Deck
- Clothesline
- Kitchen stone benchtop
- Fencing
- Modern fixtures and fittings throughout
Talk to us today - this package won't last long!
Package includes
- Signature Homes market-leading Building Guarantees
- Your choice of internal and external colours
- Fixed Price Guarantee
Floorplans: Four bedroom family home - Park Green, Karaka




Location
Lot 77, Stage 2A, Park Green

