













Holiday or Family Home Lot 158 Longview Lake Hawea-Titled Fixed Price
From $970,000
Longview, Lake Hawea, Lake Hawea
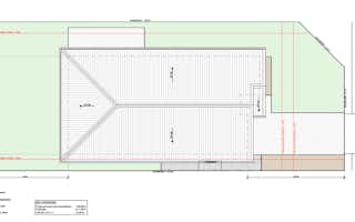
Section size 401㎡
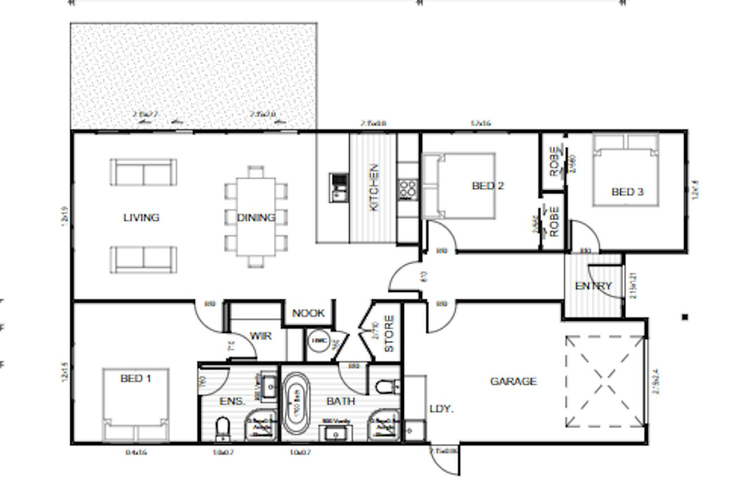
House size 139㎡
- Beds3
- Bathrooms2
- Receptions1
- Parking1
or email CarinaMaclennan@signature.co.nz
Visit Signature Homes Queenstown Lakes & Central Otago
Enquire about this Package
Holiday or Family Home Lot 158 Longview Lake Hawea-Titled Fixed Price
Longview, Lake Hawea, Lake Hawea
Longview is a stunning master-planned community located in the picturesque Lake Hawea.
Lot 158 in Longview will soon be a thriving community that will be home to 480 well-designed residential homes, a 3.5Ha township service centre, two recreational reserves and 360-degree mountain views.
Lake Hawea is an adventure playground, where Longview is only minutes from the lake and an abundance of nature walks. There will be no reason to leave once you move into your new home at Longview.
Ohau 2 floor plan - Lot 158 Longview - build from $970,000
The Ohau 2 features contemporary style paired with a practical layout. The design offers a bedroom wing consisting of three double bedrooms separated from the spacious living areas, creating a seamless flow.
Build this home with the added peace of mind of Signature Homes fixed price guarantee.
Package includes
- Signature Homes market-leading Building Guarantees
- fencing
- hydroseed
- paths & Driveways
- Fixed Price Guarantee
Floorplans: Holiday or Family Home Lot 158 Longview Lake Hawea-Titled Fixed Price




Location
Longview, Lake Hawea, Lake Hawea



