















Idyllic Lifestyle Lot 122 Prospectors Cromwell - Titled Fixed Price
From $1,030,000
17 Wallis Drive Cromwell
Section size 432㎡
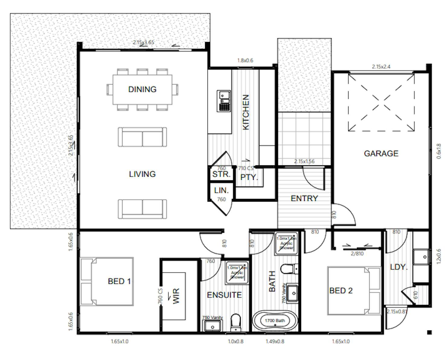
House size 125㎡
- Beds2
- Bathrooms2
- Receptions1
- Parking1
or email CarinaMaclennan@signature.co.nz
Visit Signature Homes Queenstown Lakes & Central Otago
Enquire about this Package
Idyllic Lifestyle Lot 122 Prospectors Cromwell - Titled Fixed Price
17 Wallis Drive Cromwell
Titled and ready to go - Fixed Price - No Hidden Costs
Signature Homes is proud to offer the market a House & Land package within the thoughtfully planned Prospectors Park Development
Located in Cromwell, Lot 122 in Prospector's Park has been carefully planned to create a high-quality lifestyle, retaining an acre of mature specimen tress in green reserves, making pedestrian and vehical access safe and easy with plenty of off-street parking. Lots are designed to face north, maximising sunlight for solar gain and solar power. With a wide range of sizes, you're sure to find the perfect lot for your dream home or holiday home.
Lot 122 sits right next to the Cromwell golf course and is a stunning low-maintenance site that allows you to claim back your weekends and enjoy all that Cromwell has to offer
Titled and ready to go, you wont be short of space with this cleverly designed two-bedroom plan which also includes Seperte Laundry, Oblique Cladding, Includes Fencing, Hydroseed, Driveway & Paths
Talk to us today about how you can start the building process and have your own piece of Paradise
Package includes
- Signature Homes market-leading Building Guarantees
- Includes Fencing
- Hydroseed
- Driveway & Paths
- Fixed Price Guarantee
Floorplans: Idyllic Lifestyle Lot 122 Prospectors Cromwell - Titled Fixed Price




Location
17 Wallis Drive Cromwell

