

















Premium Site with Unbeatable Views - Fixed Price Contract
From $991,000
Lot 81, Stage 4A, Lockerbie Estate, Morrinsville
Section size 614㎡
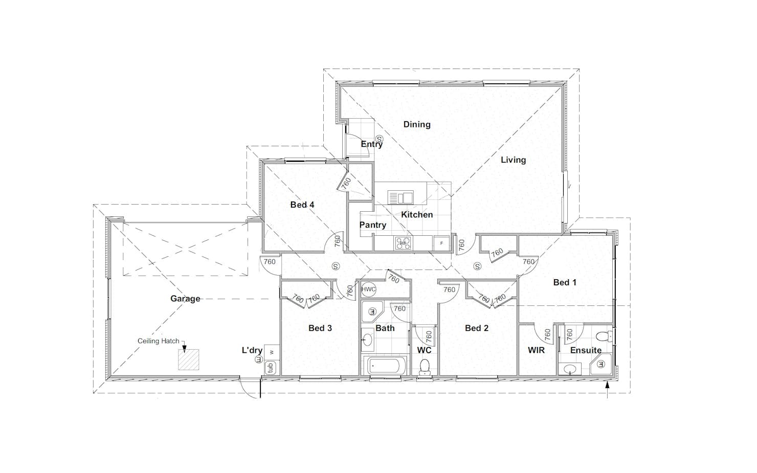
House size 181㎡
- Beds4
- Bathrooms2
- Receptions1
- Parking2
or email dawnstewart@signature.co.nz
Visit Signature Homes Waikato
Enquire about this Package
Premium Site with Unbeatable Views - Fixed Price Contract
Lot 81, Stage 4A, Lockerbie Estate, Morrinsville
Build your dream home with Signature Homes Waikato in this new subdivision with our Fixed Price Guarantee
Don't miss out on this Premium site with rural, north facing, back yard views. A top pick in Lockerbie Estate's brand new release of Stage 4A.
An easy 30-minute drive from downtown Hamilton, Lockerbie is perfect for people who want to stay connected to Hamilton but live in a small town where the sense of community is strong and the kids can walk to school or the park.
This house & land package is yet to be built, giving you the chance to select your interior & exterior colours whilst working with our colour consultant.
Titles expected January 2024.
This House & Land Package Includes:
- 614m2 Freehold Section
- 181m2 Family Home
- 4 Bedroom
- 2 Bathroom
- Open plan Kitchen, Living & Dining
- Heatpump
- Clothesline
- Fencing
- Exterior Concrete
- Letterbox
- Hydro seeded Lawns
- Front Yard Landscaping Allowance
*Photos are of a previous build similar to this plan. Specification may differ.
Looking for help with Finance? Request a copy of our finance guide which is full of tips around securing finance. Request your guide here.
Package includes
- Signature Homes market-leading Building Guarantees
- Your choice of internal and external colours
- Fixed Price Guarantee
Floorplans: Premium Site with Unbeatable Views - Fixed Price Contract




Location
Lot 81, Stage 4A, Lockerbie Estate, Morrinsville

