



























Make your Mark in Rototuna - Fixed Price Contract
From $1,138,757
Lot 16, Kimbrae, Rototuna
Section size 313㎡
House size 199㎡
- Beds4
- Bathrooms2.5
- Receptions1
- Parking2
or email dawnstewart@signature.co.nz
Visit Signature Homes Waikato
Enquire about this Package
Make your Mark in Rototuna - Fixed Price Contract
Lot 16, Kimbrae, Rototuna
Build your Dream home at this Fixed Price with Signature Homes Waikato in this highly sought-after area. Contact our team today to discuss the TurnKey Finance option.
Rototuna Village is a high quality development, designed with community in mind. The thriving area provides a high standard of living for residents with an abundance of amenities on your door step including schooling, recreation space, retail and much more.
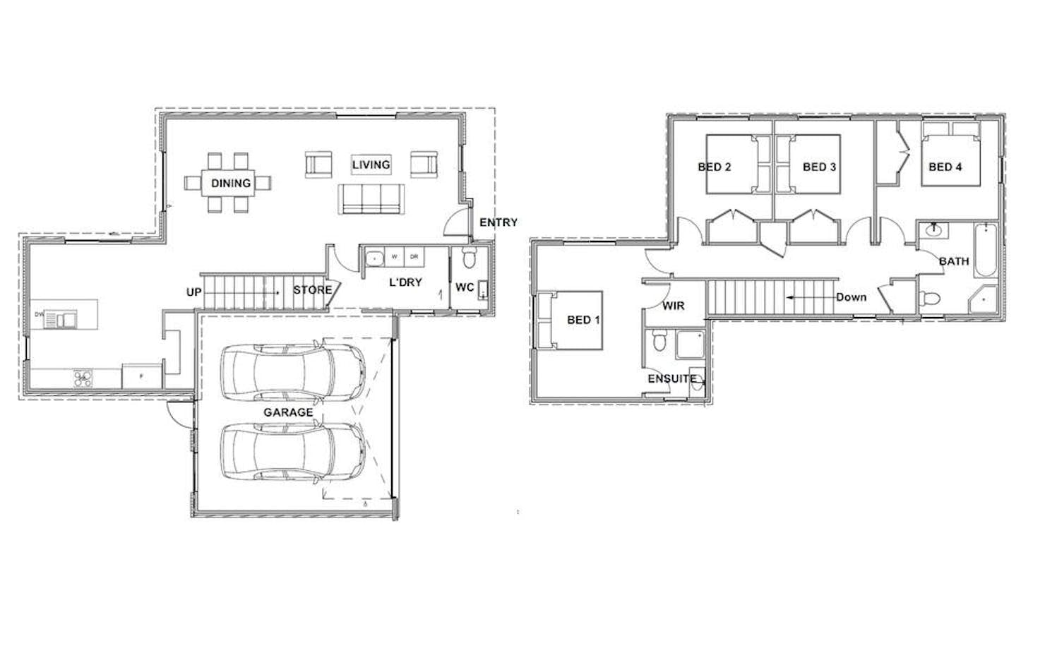
This generous 2 storey home has been carefully designed by our Signature Homes Team to meet the development requirements and to fit this premium setting. Offering two spacious levels and indoor/outdoor flow to your back yard, this home also backs onto the Rototuna High grounds further extending your green space.
This home is yet to be built, so you'll work with our Colour Consultant to select your interior colours and finishings to truly make this home your own.
This House and Land Package Includes:
- 313m2 freehold section
- 199m2 home
- 4 Bedroom
- 2.5 Bathroom
- Open plan Kitchen, Dining, Living
- Heatpump
- Clothesline
- Fencing
- Letterbox
- Hydro seeded Lawns
- Exterior Concrete
- Front Yard Landscaping allowance
*Title Ready
Images are an artist impression or of a build similar to this home.
Looking for help with Finance? Request a copy of our finance guide which is full of tips around securing finance. Request your guide here.
Package includes
- Signature Homes market-leading Building Guarantees
- Your choice of internal and external colours
- Fixed Price Guarantee
Floorplans: Make your Mark in Rototuna - Fixed Price Contract




Location
Lot 16, Kimbrae, Rototuna

