





























Okura Bay Views - Premium Living
From $2,999,000
Lot 16, Vaughans Ridge, Long Bay
Section size 588㎡
House size 256㎡
- Beds4
- Bathrooms2.5
- Receptions2
- studies1
- Parking2
or email simonw@signature.co.nz
Visit Signature Homes Rodney & North Shore
Enquire about this Package
Okura Bay Views - Premium Living
Lot 16, Vaughans Ridge, Long Bay
If views, elevation, exclusivity, and the lifestyle that comes from easy access to a premier coastal regional park are on your wish list, then Signature Homes has an opportunity for you.
Sitting on the crest of the ridge above Long Bay Regional Park and also overlooking the valley down to Okura Bay, is a small number of sections with an enviable position.
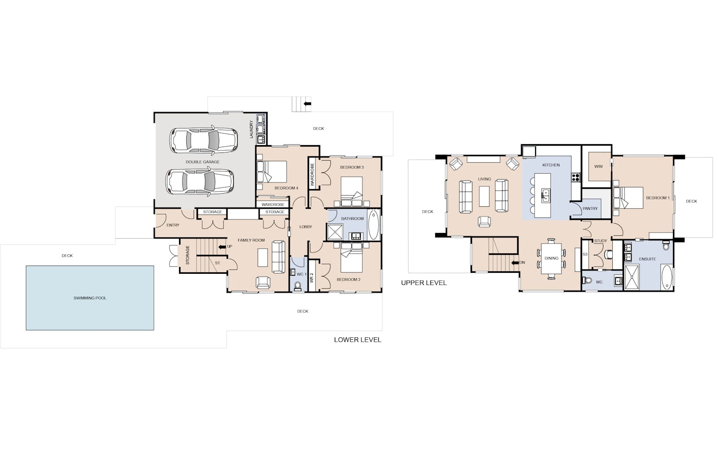
Signature Homes has custom designed a stunning home that will take advantage of the unique aspect this location affords. At 256m² with three bedrooms downstairs, adjoining a north-facing living area connecting to the proposed pool and outdoor living space, this home is designed for premium relaxed family living.
Upstairs the open-plan living and dining areas will be light-filled and complemented with raking ceilings. The contemporary bespoke designer kitchen with a walk-in pantry is a sophisticated standout. The living space will connect seamlessly to the North facing decks overlooking Okura Bay.
The Master bedroom is discreetly located, large and will overlook the ocean to the east. It is supplemented with a generous walk-in wardrobe and ensuite and its own deck where it’s easy to imagine a morning cuppa could be enjoyed as the sun rises.
Features:
- 256m² of internal living
- 588m² north-facing section
- Outstanding views
- Modern and contemporary
- Grand Master suite
- Separation, designed for family living
- One-off bespoke design
- Security and Surety with Signature Homes (40 years in operation and New Zealand Leading Guarantees)
- Buyers in the 3.3m plus range
Review the plan and see the thought that has gone into it. Consider the location and the aspect and you will know this is a unique opportunity to secure a premium opportunity and lifestyle for your family.
Please feel free to arrange a site visit or call for a confidential chat.
Package includes
- Signature Homes market-leading Building Guarantees
- Your choice of internal and external colours
- Fixed Price Guarantee
Floorplans: Okura Bay Views - Premium Living




Location
Lot 16, Vaughans Ridge, Long Bay

