

































Premier Lifestyle Block Meets Premier Home
From $3,000,000
River Downs, Riverhead
Section size 10500㎡
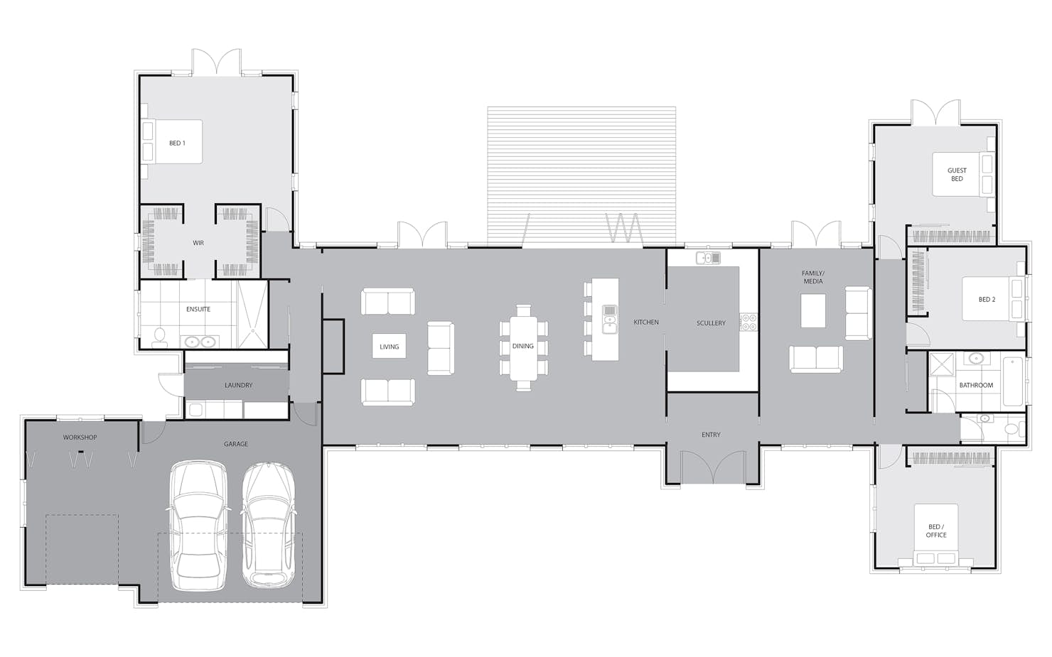
House size 311㎡
- Beds4
- Bathrooms2
- Receptions2
- Parking3
or email simonw@signature.co.nz
Visit Signature Homes Rodney & North Shore
Enquire about this Package
Premier Lifestyle Block Meets Premier Home
River Downs, Riverhead
River Downs is a premium lifestyle development to build your dream Signature Home on (1 ha – 1.6ha blocks).
Presented for sale to a very high standard and boutique in feel (6 sections only), Riverhead Downs is an enviable location. Picture your custom-designed Signature Home perched up on the hill of the countryside with prime views looking down at the Rangitopuni Stream. River Downs will have high-quality homes, extensive landscaping, a well-presented shared driveway, and trendy entrance signage for this boutique lifestyle development.
One site is now sold (5 left) so the opportunity won’t last!
Riverhead Township is just a 10-minute stroll from your driveway thanks to the fenced River Downs’private walkway. Riverhead School is within walking distance, State Highway 16 is a 5-minute drive and the beautiful Muriwai beach is just 20 minutes down the road.
Features:
- Boutique Lifestyle Blocks (6 only- 1hto 1.6h)
- Premier custom-designed Signature Home
- 311m² house design
- 4 double bedrooms
- Spacious master bedroom with walk-in wardrobe & ensuite
- 2 bathrooms
- 2 living areas
- 3 car garage
- Buyers in the 3m plus range
Arrange a time to view the sites and let’s turn your lifestyle block dream into a reality.
Package includes
- Signature Homes market-leading Building Guarantees
- Your choice of internal and external colours
- Fixed Price Guarantee
Floorplans: Premier Lifestyle Block Meets Premier Home




Location
River Downs, Riverhead

