

































Simply Stunning in a Signature Home
From $1,280,000
36 Vintry Drive, Huapai Triangle
Section size 451㎡
House size 148㎡
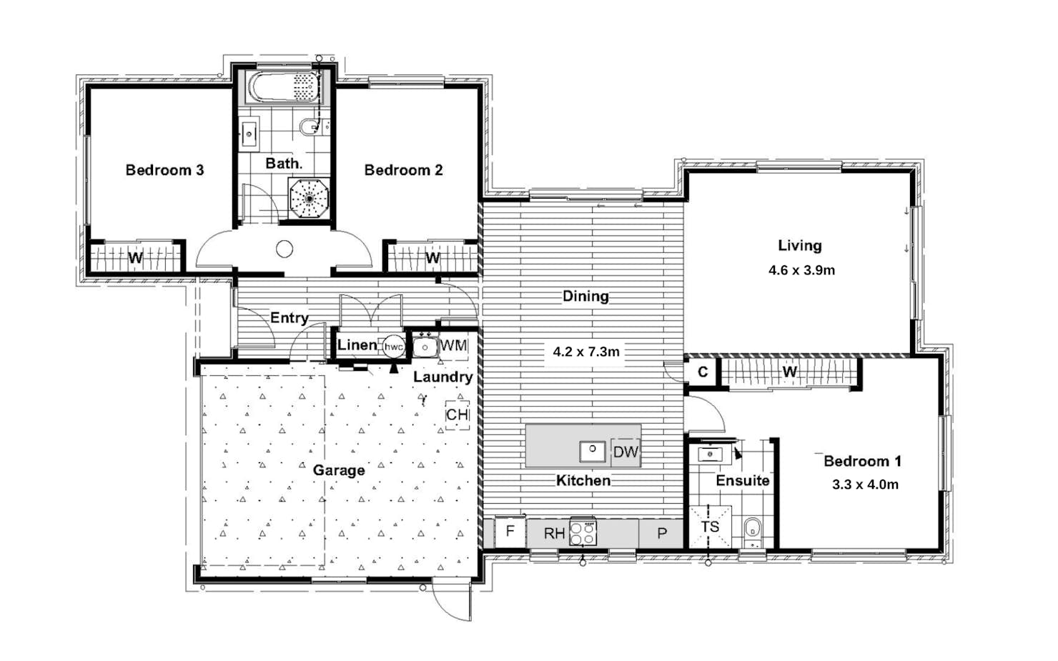
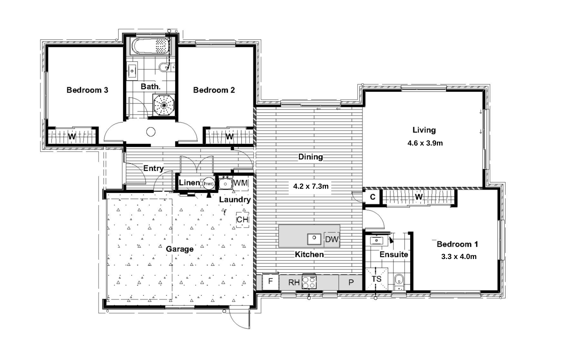
- Beds3
- Bathrooms2
- Receptions1
- Parking1
or email deanpritchard@signature.co.nz
Visit Signature Homes West & North-West Auckland
Enquire about this Package
Simply Stunning in a Signature Home
36 Vintry Drive, Huapai Triangle
A fabulous, elegant design statement set to be built in the sought after Huapai Triangle; Northwest wine country.
Beautifully appointed to take in natural light and sunshine this new build will be an enviable addition to Vintry Road. Step into your build journey with New Zealand’s largest kiwi owned building company boasting new build industry leading guarantees with confidence.
Furthermore, feel at ease knowing our local North West building team not only boasts Signature Homes Showhome of the Year but also the Project Manager of the Year.
- Level, north facing easy care 450m2
- Striking low maintenance, mixed cladding
- Gorgeous gabled roofline
- 3 family bedrooms
- Private master suite featuring tiled shower
- Stylish main bathroom with tiled bath cradle
- Extensive outdoor entertaining and alfresco dining
- Galley styled kitchen
- Fisher and Paykel Appliance package
- Methven bathroom tapware
- Open plan light filled living space
- Multiple sliders
- Local award winning project management
- Industry leading new build guarantees and warranties
A fantastic design showcasing a gorgeous north facing section in a stunning, new subdivision overflowing with green spaces. The Huapai Triangle has fantastic access to local amenities, including schools, preschools, caffes, and sports facilities. This new home is perfectly located; a short drive to wonderful Westgate shopping complex and motorway arterials.
Lets meet and discuss your final design concept.
House & Land Package: Lot 140 - HT68
NB: The images advertised are an indication of what can be built on this site for the package price
Visit our Award Winning Huapai Showhome - Open Daily 12pm - 4pm - 190 Matua Road, Huapai
Package includes
- Signature Homes market-leading Building Guarantees
- Your choice of internal and external colours
- Fixed Price Guarantee
Floorplans: Simply Stunning in a Signature Home




Location
36 Vintry Drive, Huapai Triangle

