























Snells Beach water views, under construction!
From $1,279,000
47 Kia Kaha Drive, Snells Beach
Section size 601㎡
House size 199㎡
- Beds4
- Bathrooms2
- Receptions1
- Parking3
or email wgreen@signature.co.nz
Visit Signature Homes Rodney & North Shore
Enquire about this Package
Snells Beach water views, under construction!
47 Kia Kaha Drive, Snells Beach
Are you looking for a premium spacious section with views of lush green paddocks and the ocean? With titles issued and construction underway, we guarantee to get you in your home within 5 months or we will pay your rent or equivalent!
Look no further than Mahurangi Heights in Snells Beach, with Warkworth motorway opened up this premium lifestyle opportunity awaits.
You’ll have everything you need right at your fingertips at Snells Beach. The development is close to all the local amenities you could want, including schools, shops, restaurants, and parks. You’ll have easy access to public transport, and are just a short drive from Auckland. With the new Puhoi to Warkworth motorway due to open, commuting to Auckland has never been easier. The peninsular is home to some of the most stunning scenery in the country.
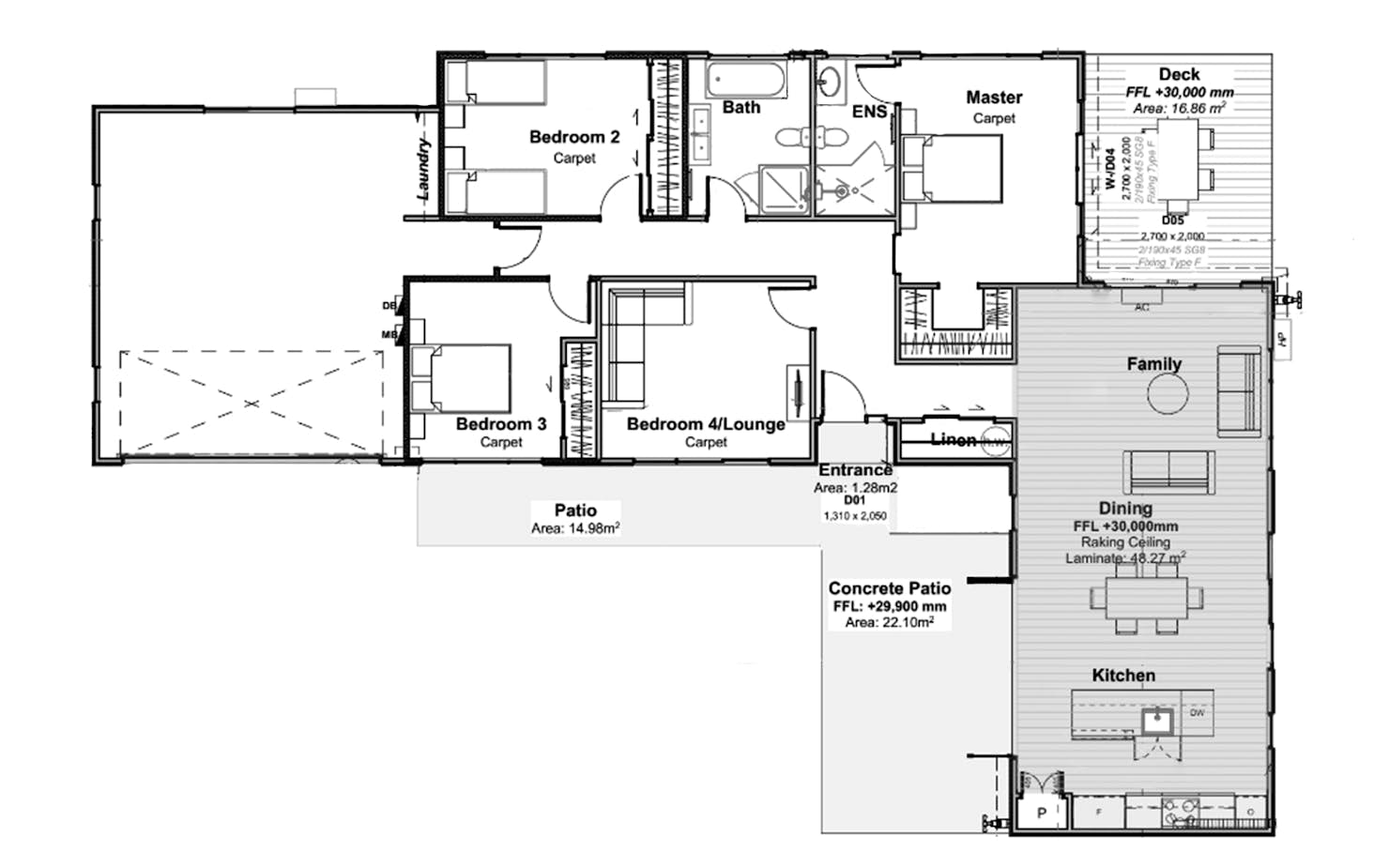
This Home & Land Package Offers 199sqm of living on ~600sqm of developed land and the following features:
- Building consent Issued 4 bedroom (or 3 bedroom and media)
- 1 main bathroom and 1 ensuite to Master with Master having a large walk-in robe
- Large double garage with laundry
- Open plan main living area kitchen dining family room with raking ceilings to open up the area that sprawls onto a deck via both family room and Master
- Premium features and fixtures throughout
- Decking to the courtyard
- Concrete Patio to the front of the property to maximise yard (great for kids/pets/grandkids) or taking advantage of the sun
- New Zealand's Leading Home Guarantees including Fixed Price Guarantee
Package includes
- Signature Homes market-leading Building Guarantees
- Your choice of internal and external colours
- Fixed Price Guarantee
Floorplans: Snells Beach water views, under construction!




Location
47 Kia Kaha Drive, Snells Beach

