

















Stand Out Home in a Superior Setting - Plans are Underway
From $1,350,000
16 Hugo Shaw Drive, Lot 8, Bridleways Estate
Section size 603㎡
House size 191㎡
- Beds3
- Bathrooms2
- Receptions1
- Parking2
Stand Out Home in a Superior Setting - Plans are Underway
16 Hugo Shaw Drive, Lot 8, Bridleways Estate
Here's a great opportunity to secure a one of a kind, stand out home in the increasingly popular Bridleways Estate of Cambridge.
With the Building Consent Plans already underway for this truly unique design, you'll get a head start on your building journey and will be moving into your brand new home before you know it.
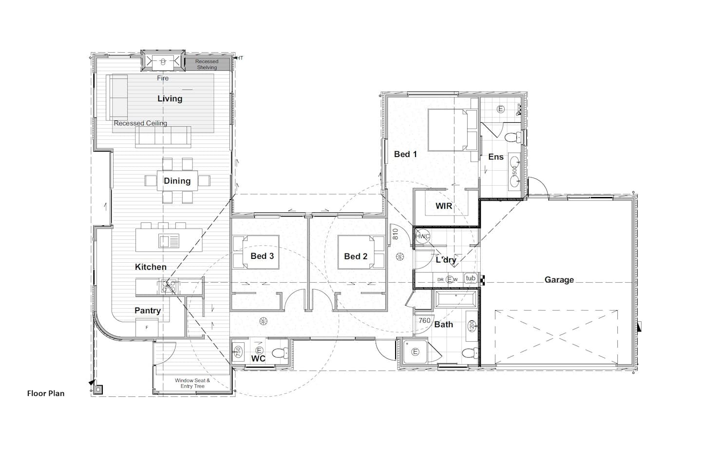
This beautiful home maximises the sunshine, with all 3 Bedrooms and the Open Plan Living area facing north and with access out to dual outdoor living spaces making the most of both the afternoon and evening sun. Other benefits include a generous master suite, separate laundry and impressive designer Kitchen and Pantry.
This House and Land Package Includes
- 603m2 freehold section
- 191m2 home
- Double garage
- 3 Bedroom
- 2 Bathroom
- Open plan Kitchen, Dining, Living
- Generous walk behind pantry
- Heatpump
- Clothesline
- Fencing
- Letterbox
- Hard Landscaping
- Hydro seeded Lawns
- Front Yard Planting Allowance
- Solar Panels
- Electric Vehicle Pre Wire
Our Market Leading Guarantees
At Signature Homes, we offer independently bonded Building Guarantees for complete cover and protection for our clients' investments during the build and long after we have handed over the keys.
Our Guarantees provide our clients more protection than any other in New Zealand and cover:
- Home Completion Guarantee
- Ten Year Weathertightness Guarantee
- Ten Year Structural Guarantee
- Two Year Maintenance Guarantee
- Completion Date Guarantee
- Total Price Guarantee
- No Hidden Extras Guarantee
Package includes
- Signature Homes market-leading Building Guarantees
- Your choice of internal and external colours
- Fixed Price Guarantee
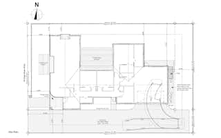
Floorplans: Stand Out Home in a Superior Setting - Plans are Underway




Location
16 Hugo Shaw Drive, Lot 8, Bridleways Estate

