

















Standout in Aurora - Fixed Price Package
From $979,000
Unit B, 7 Celeste Terrace, Aurora, Peacocke
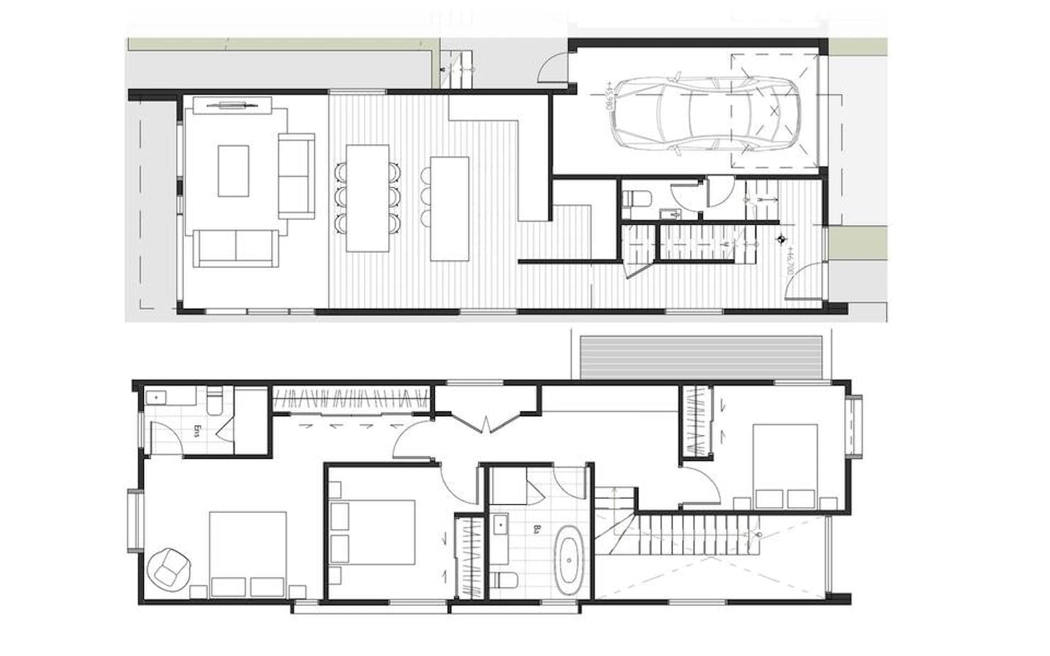
Section size 208㎡
House size 165㎡
- Beds3
- Bathrooms2.5
- Receptions1
- Parking1
or email carlmapley@signature.co.nz
Visit Signature Homes Waikato
Enquire about this Package
Standout in Aurora - Fixed Price Package
Unit B, 7 Celeste Terrace, Aurora, Peacocke
This is a Fixed Price Package and construction will commence this year.
Unit B in this striking Duplex will be a standout home of the subdivision with it’s impressive architectural features and high quality finishings inside and out.
The well thought out 3 bedroom design, across 2 levels is perfect for those seeking low maintenance, high spec, modern living in a great Hamilton location just 5 minutes to the Waikato Hospital.
Located in Hamilton’s newest growth area, Aurora boasts elevated sites with striking views and excellent connectivity to the wider Peacocke area.
The house & land package is yet to be built, giving you the chance to select your interior colours whilst working with our colour consultant. (Exterior colours are set)
This House & Land Package Includes:
- 208sqm Individually Titled Section
- 165m2 Home
- 3 Bedrooms
- 2.5 Bathrooms
- Open plan Kitchen, Dining, Living
- Large Study Nook
- Stone Kitchen Benchtop
- Ensuite Tiled Shower
- Heatpump
- Clothesline
- Fencing
- Letterbox
- Hydro seeded Lawns
- Landscaping Allowance
- Curtains and Blinds Allowance
*Title Ready
Photos and images are an artist’s impression
Needing help with Finance? Request a copy of our finance guide which is full of tips around securing finance. Request your guide here.
Package includes
- Signature Homes market-leading Building Guarantees
- Your choice of internal and external colours
- Fixed Price Guarantee
Floorplans: Standout in Aurora - Fixed Price Package




Location
Unit B, 7 Celeste Terrace, Aurora, Peacocke

