





























Start your new lifestyle at Warkworth Ridge
From $1,030,000
Lot 38, Warkworth Ridge, Warkworth
Section size 347㎡
House size 122㎡
- Beds3
- Bathrooms2
- Receptions1
- Parking1
or email wgreen@signature.co.nz
Visit Signature Homes Rodney & North Shore
Enquire about this Package
Start your new lifestyle at Warkworth Ridge
Lot 38, Warkworth Ridge, Warkworth
Here is your chance to secure a modern three-bedroom home within the sought-after Warkworth Ridge development.
On offer is a Signature Homes House & Land package on Lot 38, located at the edge of the development and near the planned neighbourhood centre. Positioned just 45 minutes from Auckland Central and on the rolling hills of Warkworth, this new community will express a rural character, where residential sections will unfold across 53 hectares.
Titles are issued - Contact Signature Homes today to start your new home journey in Warkworth Ridge
Residents of Warkworth Ridge will enjoy relaxed living with a focus on well-being and connection. Expect greenery, open spaces, attractive street appeal, and house sites for sunshine and rural views. Planned amenity includes parks, cycleways, and a neighbourhood centre with a café and playground.
The package price includes an allowance for the following:
- Kitchen design
- Earthworks
- Fisher and Paykel Appliances
- Quickstep Timber Laminate to living areas
- Pine Decking
- Longrun Roofing
- Including Watercare Connection ($22,000)
Price excludes landscaping, fencing, and letterbox.
Talk to Signature Homes today to customise this package to suit your budget and lifestyle.
Package includes
- Signature Homes's market-leading Building Guarantees
- Your choice of internal and external colours
- Fixed Price Guarantee
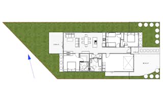
Floorplans: Start your new lifestyle at Warkworth Ridge




Location
Lot 38, Warkworth Ridge, Warkworth

