

















Suburban Living with a Rural Outlook
From $939,745
Lot 85, Stage 4A, Lockerbie Estate
Section size 588㎡
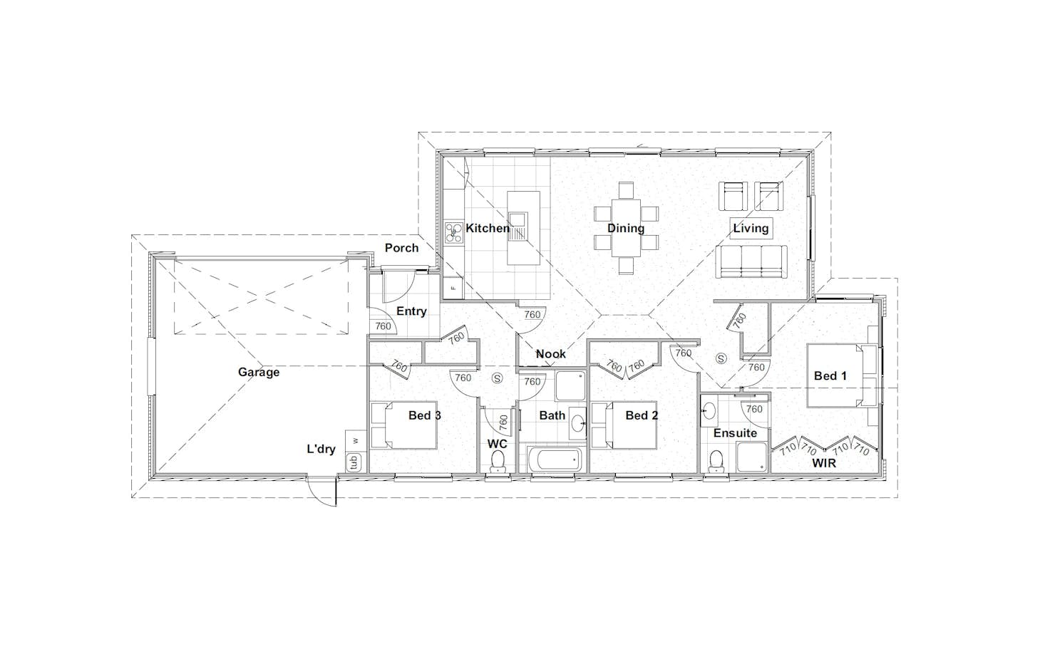
House size 160㎡
- Beds3
- Bathrooms2.5
- Receptions1
- Parking2
Suburban Living with a Rural Outlook
Lot 85, Stage 4A, Lockerbie Estate
Build your dream home with Signature Homes Waikato in this new subdivision with our Fixed Price Guarantee
Don't miss out on this Premium site with an amazing rural back yard outlook. A top pick in Lockerbie Estate's brand new release of Stage 4A.
An easy 30-minute drive from downtown Hamilton, Lockerbie is perfect for people who want to stay connected to Hamilton but live in a small town where the sense of community is strong and the kids can walk to school or the park.
This house & land package is yet to be built, giving you the chance to select your interior & exterior colours whilst working with our colour consultant.
Titles expected January 2024.
This House & Land Package Includes:
- 588m2 Freehold Section
- 160m2 Family Home
- 3 Bedroom
- 2.5 Bathroom
- Open plan Kitchen, Living & Dining
- Heatpump
- Clothesline
- Fencing
- Exterior Concrete
- Letterbox
- Hydro seeded Lawns
- Front Yard Landscaping Allowance
*Images are an artist impression
Looking for help with Finance? Request a copy of our finance guide which is full of tips around securing finance. Request your guide here.
Package includes
- Signature Homes market-leading Building Guarantees
- Your choice of internal and external colours
- Fixed Price Guarantee
Floorplans: Suburban Living with a Rural Outlook




Location
Lot 85, Stage 4A, Lockerbie Estate

