



















The Kids Can Walk to School - Churton Park!
Price by negotiation
16D Halswater Drive, Churton Park, Wellington, Wellington
Section size 614㎡
House size 155㎡
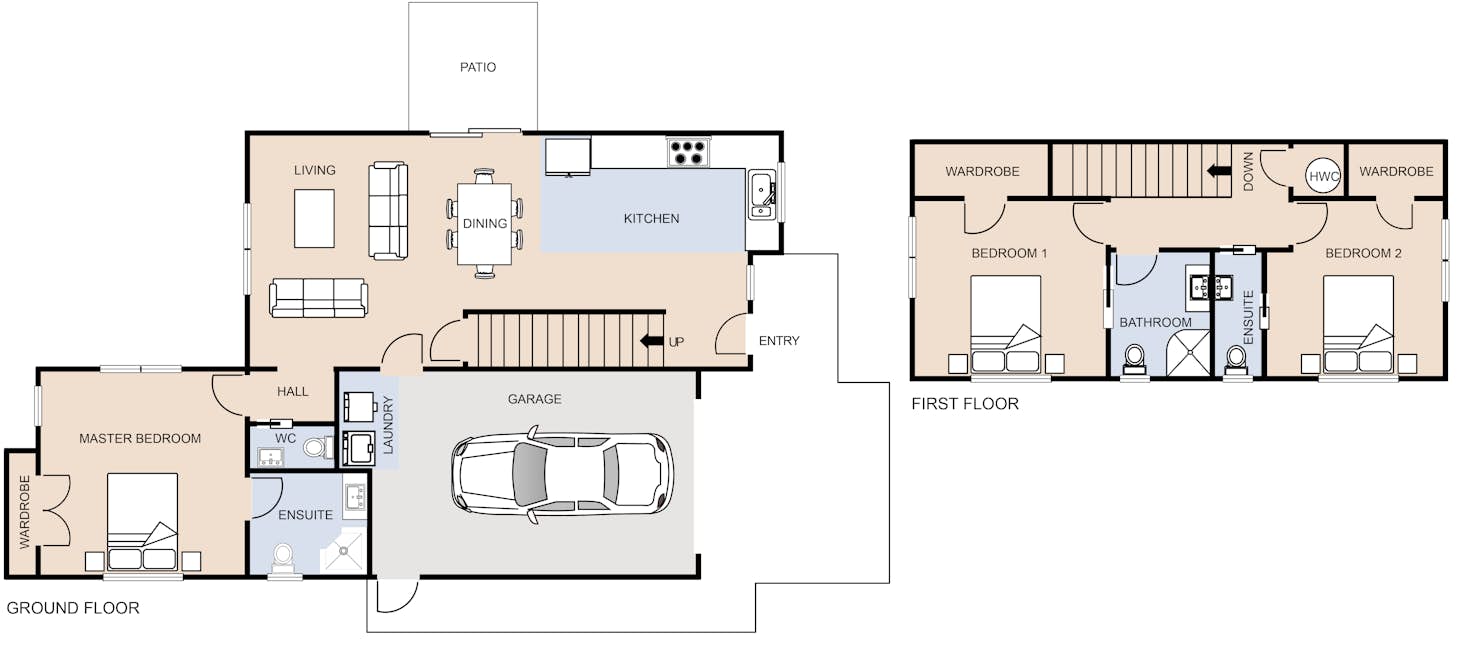
- Beds3
- Bathrooms2
- Receptions1
- Parking2
or email tracytai@signature.co.nz
Visit Signature Homes Greater Wellington
Enquire about this Package
The Kids Can Walk to School - Churton Park!
16D Halswater Drive, Churton Park, Wellington, Wellington
This modern three bedroom House & Land package offers the perfect blend of style and convenience. The home has been cleverly designed to maximise space. The ground floor of this home offers plenty of boasts a seamless open plan design, which extends effortlessly to the outdoor area. While upstairs you will find a thoughtfully considered bedroom and bathroom wing, the perfect balance of social and private spaces.
The L-shaped kitchen is a clever feature that maximizes the available space, allowing for a spacious, airy feel that perfectly complements the open plan layout.
This home is yet to be built, so you'll work with our Colour Consultant to select your interior colours and finishings to truly make this home your own.
Make Churton Park your home today
Joing the thriving community of Churton Park, Wellington today. The highly sought-after area provides a high standard of living for residents with an abundance of amenities on your door step including Churton Park Village, supermarkets, Churton Park reserve, walkways, retail and is located withing walking distance of Churton Park School.
House & Land package features:
- 615m² section
- 155m² home
- 3 spacious bedrooms
- 2 Bathroom
- Open plan kitchen, dining and living area
- Heatpump
- Internal garage access
- Title issued
The images advertised are an indication of what can be built on this site for the package price and are artist impressions only
Contact Signature Homes Greater Wellington today to secure this package with a Fixed Price Contract.
Package includes
- Signature Homes market-leading Building Guarantees
- Your choice of internal and external colours
- Fixed Price Guarantee
Floorplans: The Kids Can Walk to School - Churton Park!




Location
16D Halswater Drive, Churton Park, Wellington, Wellington

