





The Castlepoint: A five-bedroom house plan by Signature Homes
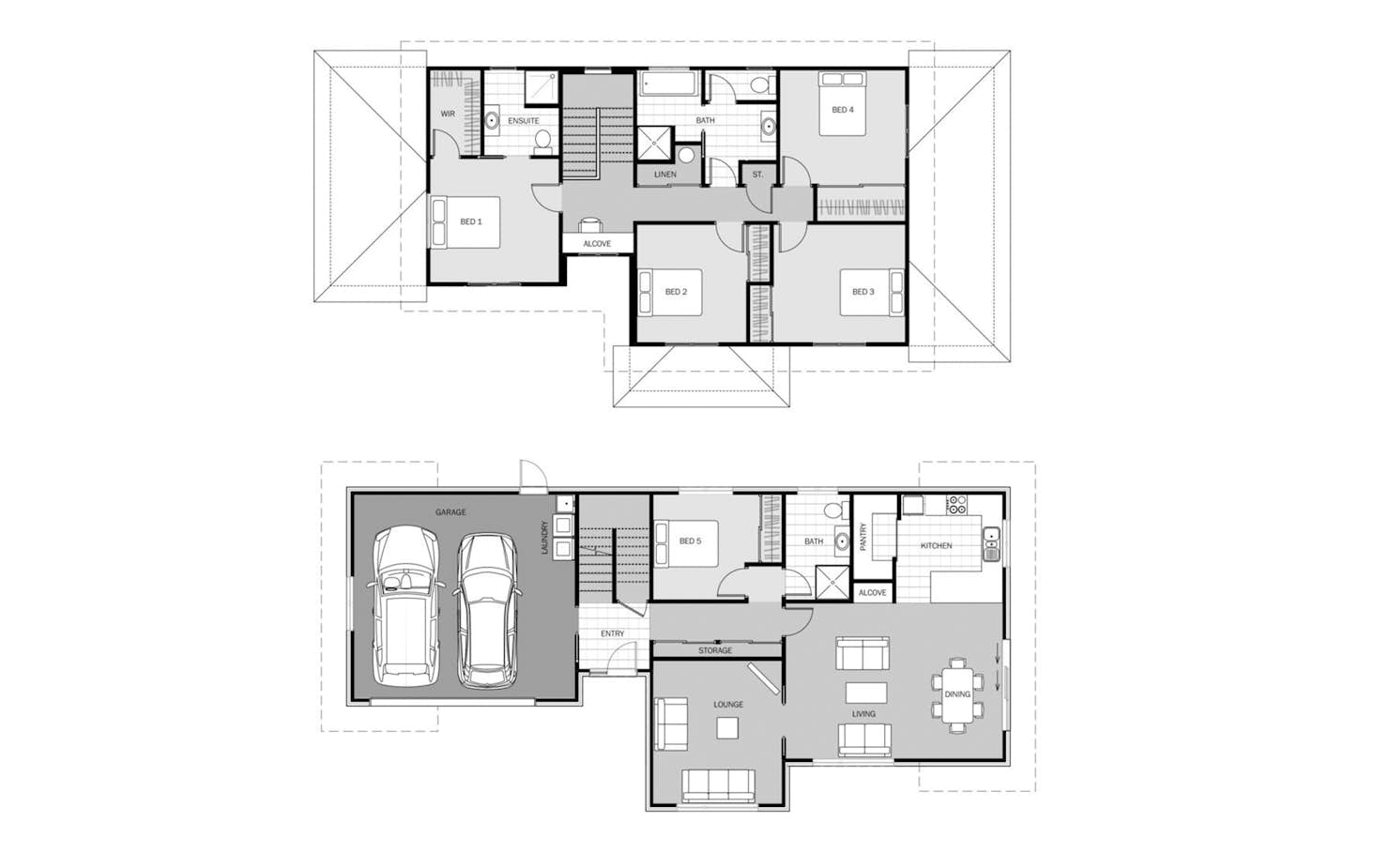
The Castlepoint sprawls across two spacious storeys. Its home theatre and large, open-plan living spaces are primed for large get-togethers while the clever floorplan also provides plenty of quiet spots to study or unwind.
An entertainer’s kitchen is the heart of the home, complete with a versatile island bench and butler’s pantry. Add to that a guest bedroom and bathroom downstairs and you have an entertainer's dream.
The first floor is dedicated to four double bedrooms, including a master suite with walk-in wardrobe and ensuite and a large family bathroom with separate WC. A large linen cupboard and study nook make the most of the landing space.
Build this home with the added peace of mind of Signature Homes fixed price guarantee.
Signature Plus is part of Signature Homes' collection of pre-designed house plans. This series presents top-tier specifications for both the home's exterior and interior. Each design boasts well-considered layouts, maximising space and harnessing natural light.
Customise this plan to suit your budget and lifestyle. Book your no-obligation new home workshop today.
Castlepoint
House size 251㎡
- Beds5
- Bathrooms3
- Receptions2
- Parking2
Enquire about this plan
Castlepoint Floorplan





