





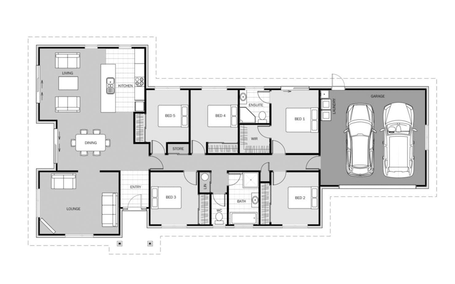
The Kukui: A five-bedroom house plan by Signature Homes
- Five double bedrooms
- Ensuite and walk-in wardrobe for the master bedroom
- Separate bathroom and WC
- Separate shower and bath in the bathroom
- Double garage with internal access
Build this home with the added peace of mind of Signature Homes fixed price guarantee.
Signature Plus is part of Signature Homes' collection of pre-designed house plans. This series presents top-tier specifications for both the home's exterior and interior. Each design boasts well-considered layouts, maximising space and harnessing natural light.
Customise this plan to suit your budget and lifestyle. Book your no-obligation new home workshop today.
Read more
Kukui
House size 220㎡
- Beds5
- Bathrooms2
- Receptions2
- Parking2
Enquire about this plan
Kukui Floorplan





