









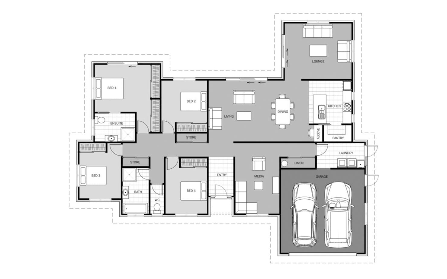
The Kupe: A four-bedroom house plan by Signature Homes
Signature Plus is part of Signature Homes' collection of pre-designed house plans. This series presents top-tier specifications for both the home's exterior and interior. Each design boasts well-considered layouts, maximising space and harnessing natural light.
Explore our latest new home inspiration brochures here.
Read more
Kupe
House size 239㎡
- Beds4
- Bathrooms2
- Receptions3
- Parking2
Enquire about this plan
Kupe Floorplan





