









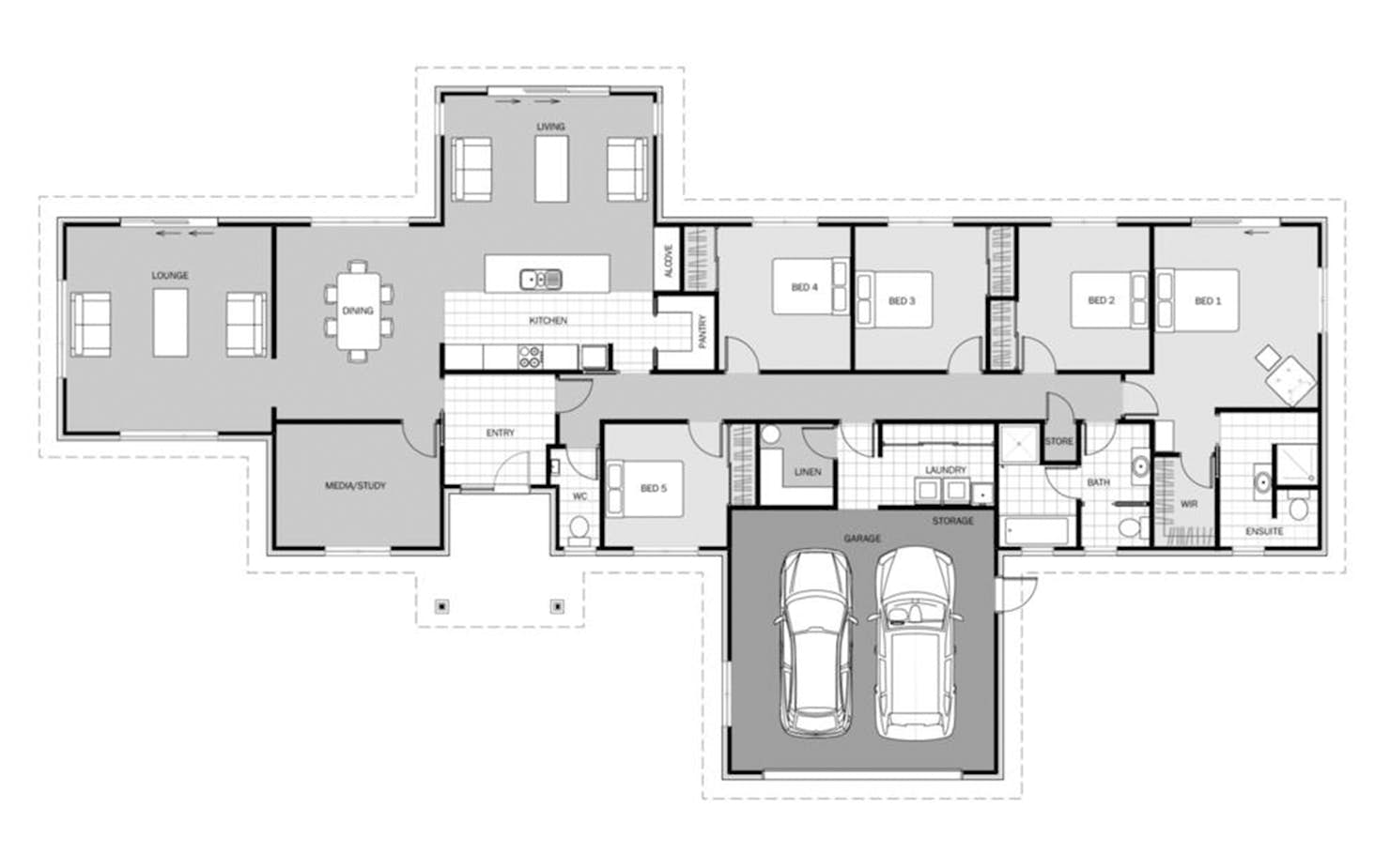
The Pohutukawa: A five-bedroom house plan by Signature Homes
- Five double bedrooms
- Ensuite and walk-in wardrobe for the master bedroom
- Open plan kitchen, dining and living areas with alcove
- Separate lounge
- Walk-in pantry
- Separate media/study room
- Separate bathroom and WC
- Separate shower and bath in the bathroom
- Separate laundry
- Double garage with internal access
Build this home with the added peace of mind of Signature Homes fixed price guarantee.
https://www.signature.co.nz/brochures/
Customise this plan to suit your budget and lifestyle. Book your no-obligation new home workshop today.
Read more
Pohutukawa
House size 290㎡
- Beds5
- Bathrooms2.5
- Receptions3
- Parking2
Enquire about this plan
Pohutukawa Floorplan





