





The Puriri: A four-bedroom house plan by Signature Homes
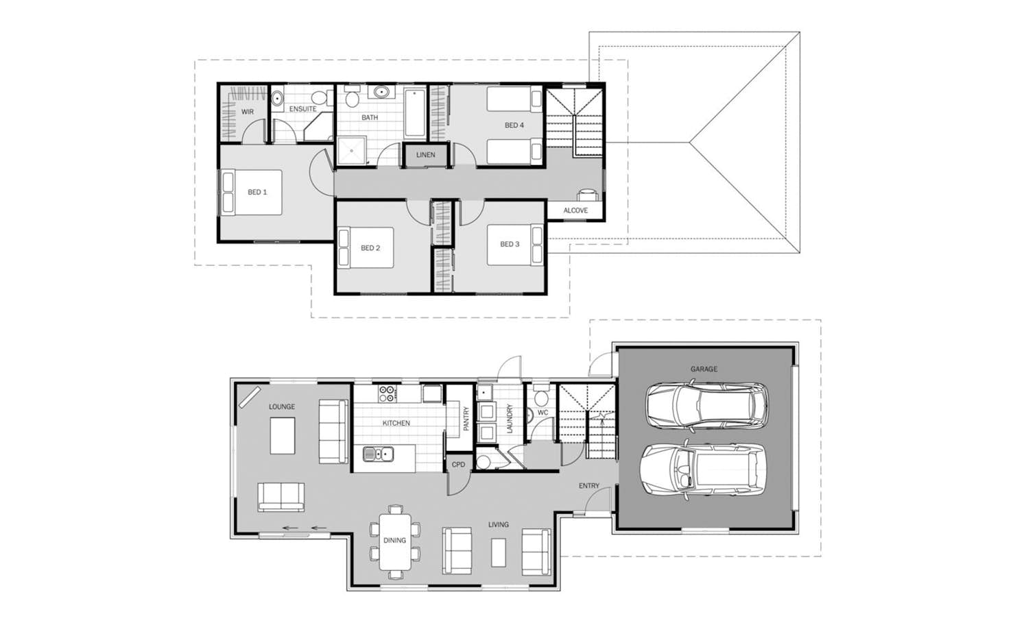
As you enter the Puriri you are greeted by expansive, open-plan social spaces. The generous kitchen, living, and dining are the heart of this home and are perfect for entertainers with a sizeable walk-in pantry providing ample storage space.
The first floor is dedicated to four double bedrooms including a master retreat that features an ensuite and walk-in wardrobe. A centralised bathroom and light-filled study nook on the landing complete the top level.
Build this home with the added peace of mind of Signature Homes fixed price guarantee.
Signature Plus is part of Signature Homes' collection of pre-designed house plans. This series presents top-tier specifications for both the home's exterior and interior. Each design boasts well-considered layouts, maximising space and harnessing natural light.
Customise this plan to suit your budget and lifestyle. Book your no-obligation new home workshop today.
Puriri
House size 196㎡
- Beds4
- Bathrooms2.5
- Receptions2
- Parking2
Enquire about this plan
Puriri Floorplan





