



























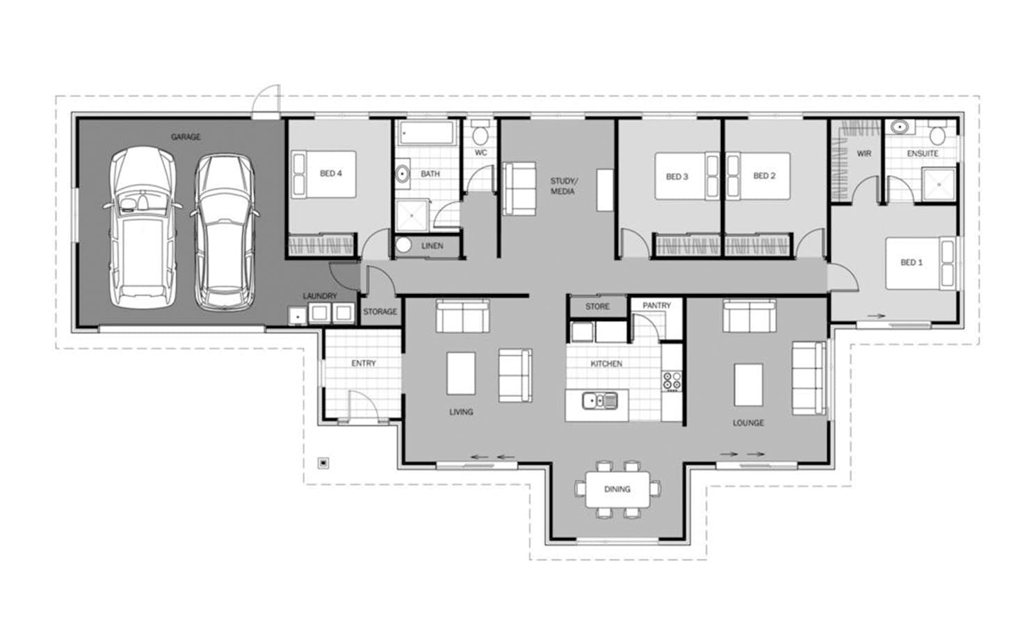
The Tafua: A four-bedroom house plan by Signature Homes
- Formal entry for privacy and security
- All day sun in open plan living areas
- Four double bedrooms
- Media room
- Ensuite and walk-in wardrobe for the master bedroom
- Separate lounge, separate bathroom and WC, separate laundry
- Double garage with internal access
- Large butlers pantry
Build this home with the added peace of mind of Signature Homes fixed price guarantee.
Signature Plus is part of Signature Homes' collection of pre-designed house plans. This series presents top-tier specifications for both the home's exterior and interior. Each design boasts well-considered layouts, maximising space and harnessing natural light.
Customise this plan to suit your budget and lifestyle. Book your no-obligation new home workshop today.
Read more
Tafua
House size 232㎡
- Beds4
- Bathrooms2
- Receptions3
- Parking2
Enquire about this plan
Tafua Floorplan





