





































Large Family Home in Exclusive Area - FIXED PRICE
From $1,804,410
Lot 77, Stage 2A, Park Green, Karaka
Section size 364㎡
House size 217㎡
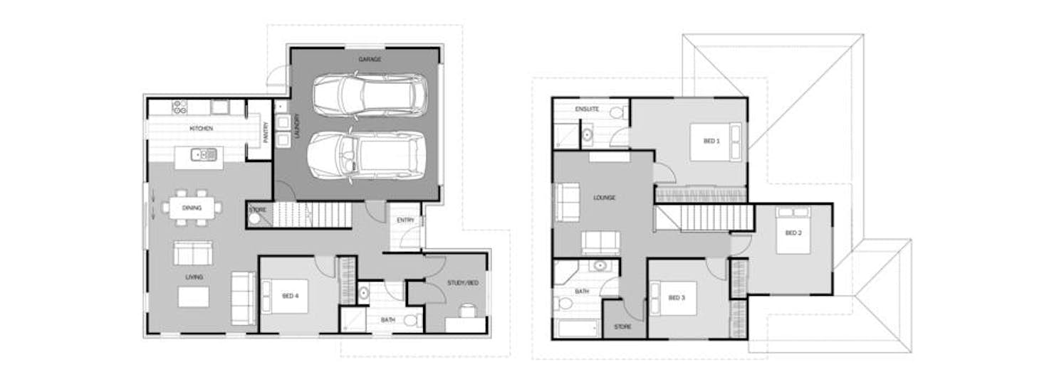
- Beds4
- Bathrooms3
- Receptions1
- studies1
- Parking2
or email BenWheeler@signature.co.nz
Visit Signature Homes Papakura & Franklin
Enquire about this Package
Large Family Home in Exclusive Area - FIXED PRICE
Lot 77, Stage 2A, Park Green, Karaka
Here is your chance to secure a modern, double sorey, open-plan four-bedroom (plus study) family home, on a generous yet low maintenance section.
Located in the stunning, sought-after, new-development with gentle undulating land having expansive access to a coastal estuary, Park Green has a significant coast edge with freshwater streams and large areas of greenways. It is envisaged that there will be something for everyone, from pedestrian and cycle networks, to parks and amenity areas.
On a north-facing section located in a quiet, elegant neighbourhood - this is your new dream home! Park Green truly offers a dynamic lifestyle that will provide a sense of space and of high-quality living. Situated approximately 30 minutes south of Auckland CBD, between Karaka and Drury, Park Green is located on Park Estate Road, Hingaia, with easy access off the SH1 Drury interchange and via Great South Road.
Plus - the brand new, local, primary school is currently under construction and set to open in 2022.
A Signature Homes House & Land package brings together a block of land and a home that perfectly suits the section for a fixed price. It's an easy, secure way to buy a new home, with no hidden costs or surprises. The advertised price is all you will pay.
Furthermore, all Signature Homes are protected by the best building guarantees in NZ, giving you peace of mind along the way.
House & Land package features includes:
- 217m2 of internal living
- 364m2 of north-facing flat land
- Double Garage
- Four generous bedrooms plus study
- Tiled Showers
- Heat Pump
- Top soil, grass seed & some planting
- Clothesline
- Timber Deck
- Stone benchtop in kitchen
- Fencing
- Modern fixtures and fittings throughout
Talk to us today - this package won't last long!
Package includes
- Signature Homes market-leading Building Guarantees
- Your choice of internal and external colours
- Fixed Price Guarantee
Floorplans: Large Family Home in Exclusive Area - FIXED PRICE




Location
Lot 77, Stage 2A, Park Green, Karaka


